Disponible de suite
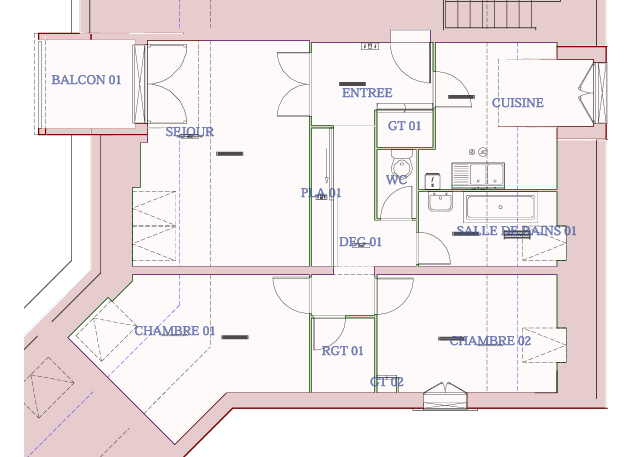
Magnifique F3 de 65 m² au 3ème étage sans ascenseur, dans une résidence au calme à proximité de piscine. Ce logement comprend un salon lumineux, une cuisine, 2 chambres confortables, une salle de bain avec baignoire, de toilettes séparées, et d’un balcon. Il dispose de de parking privatif.
Profitez d’un contrat d’entretien de votre logement SERENIS « tout compris »,
d’un loyer inférieur au marché privé, de 0€ de frais d’agence, et d’une permanence téléphonique pour les urgences 24h/24 et 7j/7.
État des risques :
Les informations sur les risques auxquels ce bien est exposé sont disponibles sur le site Géorisques : www.georisques.gouv.fr
Pièces principales
Cuisine (9.68m²), Séjour (16.72m²), Chambre 1 (11.82m²), Chambre 2 (8.51m²), Chambre 3 (9m²), Rangement (2.48m²), Placard 1 (1.45m²)
Autres pièces
Salle de bain (3.87m²), W.C. 1 (1.41m²), Entrée (4.83m²), Balcon 1 (4.38m²), Couloir 1 (5.56m²), Dégagement 1 (5.56m²)
consommation
(énergie primaire)
émissions
logement très performant
226
kWh/m2 .an
7
kg CO2/m2 .an
logement extrêmement consommateur d'énergie
APL / AL

Accueil physique
Du lundi au vendredi de 08h30 à 12h00 ou sur rendez-vous en dehors de ces horaires.
Accueil téléphonique
Du lundi au vendredi de 08h30 à 12h00 et de 14h00 à 17h00 (sauf les vendredis à 16h30).
Disponible de suite
Disponible de suite
Disponible de suite
Disponible de suite
Disponible de suite