Habitats de Haute-Alsace s’attache depuis de nombreuses années à proposer une offre de logements spécifiquement dédiée aux personnes agées. A la demande et en partenariat avec la commune de Metzeral, l’Office a donc entrepris la construction d’une résidence Séniors composée de 12 logements. La future résidence «Les Jardins Immer» devrait accueillir ses premiers locataires dès mars 2027.
Accompagner les personnes agées, un axe stratégique pour Habitats de Haute-Alsace
Conscient de la transition sociétale que nous vivons, avec plus de 30% de la population alsacienne qui aura plus de 60 ans d’ici 20 ans, Habitats de Haute-Alsace développe depuis de nombreuses années un large panel de « solutions d’habiter » adaptées au vieillissement, à mi-chemin entre les maisons de retraite (peu adaptées aux séniors valides) et le logement familial (devenu trop difficile à entretenir): habitats inclusifs, résidences autonomie, résidences séniors comme ici à Metzeral… Chaque année 1 à 2 résidences dédiées sont ainsi construites (venant s’ajouter aux 41 résidences Séniors et 8 autonomie déjà existantes, soit plus de 1300 logements sur l’ensemble du parc immobilier de l’Office), et de nombreuses adaptations sont réalisées dans les logements existants pour garantir l’autonomie des locataires (barre d’appui, WC surelevés, ….).
En tant qu’OPH rattaché à la Collectivité européenne d’Alsace qui a en charge la problématique du vieillissement de la population, l’Office développe également ces dernières années de nouvelles actions d’accompagnement renforcé des locataires (ou futurs locataires) Séniors, avec notamment le déploiement du projet innovant «Repair Âge» : visite de 1 500 locataires de l’Office âgés de plus de 65 ans et isolés pour faire le diagnostic de leurs besoins pour rester le plus longtemps possible dans leur logement (adaptations techniques, services…).
«Les Jardins d’Immer», une résidence Séniors conçue pour le confort et la sérénité de ses locataires
Partenaire par nature des collectivités haut-rhinoises, et acteur engagé dans le développement de solutions d’habitats adaptés aux aînés, Habitats de Haute-Alsace a donc souhaité soutenir le projet de résidence séniors porté par la commune de Metzeral.
Metzeral est une commune de 1 100 habitants, il nous aurait été difficile de construire cette résidence seniors seuls. Habitats de Haute-Alsace a su nous accompagner sur ce projet, et je ne les remercierai jamais assez. Sans ce beau partenariat, nous ne serions pas là aujourd’hui.
Denise BUHL, Maire de Metzeral
C’est dans ce cadre que l’Office a acquis un foncier de 18 ares à proximité de services (gare, boulangerie, superette, banque, tabac presse…) permettant la construction de la future résidence «Les Jardins Immer». Celle-ci comprendra 12 logements en locatif social (9 T2 et 3 T3, avec des surfaces allant de 49m2 à 67m2) garantis par 3 types de prêts différents, permettant ainsi d’offrir au plus grand nombre la possibilité de trouver un logement adapté à ses ressources :
Prêt Locatif Aidé d’Intégration (PLAI) qui finance les logements destinés aux personnes aux revenus les plus modestes (inférieurs à 60% des plafonds de ressources permettant l’accès à un logement social) – 4 logements ;
Prêt Locatif à Usage Social (PLUS) pour les logements aidés « traditionnels », accessibles en termes de revenus à plus de 70% de la population – 5 logements
Prêt Locatif Social (PLS) attribués aux familles dont les revenus sont trop élevés pour pouvoir accéder à un logement PLUS mais trop bas pour pouvoir se loger dans le secteur privé – 3 logements
Conçue avec le cabinet d’architecture Atelier D Form de Soultzbach-les-Bains, la future résidence présente un parti architectural harmonieux et de bonne facture (construction mixte béton et bois avec des choix techniques permettant d’obtenir la certification NF Habitat Haute Qualité Environnementale), et se veut sobre et performante du point de vue énergétique (DPE B) grâce au recours aux énergies
renouvelables (pose de panneaux photovoltaïques en toiture pour l’eau chaude sanitaire et installation d’une pompe à chaleur pour le chauffage collectif). Ce projet illustre parfaitement les engagements de l’Office : accompagner les communes haut-rhinoises, favoriser la sobriété environnementale dans sa production de logements, et assurer un cadre de vie qualitatif, adapté et abordable à ses futurs locataires.
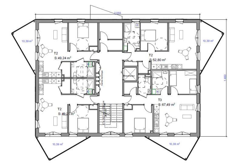
Plan d'étage de 3 T2 et 1 T3
Principales informations :
- Batiment en RDC + 2 étages avec un ascenseur qui dessert chaque étage et un balcon/terrasse pour chaque logement ;
- Construction mixte beton et bois, certifiée NF Habitat Haute Qualité Environnementale (DPE prévisionnel niveau B)
- Chauffage collectif par pompe à chaleur air-air et eau chaude sanitaire par panneaux solaires ;
- Ventilation double flux hygroréglable ;
- 4 garages et 13 places de stationnement
- Logements adaptés aux séniors : douche sans seuil avec barre d’appui, WC surelevés, volets roulants électriques, balcons sans seuil)








Plan de financement de la résidence Séniors «Les Jardins Immer»
SUBVENTIONS, 21%
- Subvention de l’Etat 59 064 €
- Subvention de Metzeral 144 000 €
- Subvention de la CeA 208 000 €
EMPRUNTS, 62%
- Prêt de la Caisse des Dépôts et Consignations principal 1 189 874,80 €
FONDS PROPRES Habitats de Haute-Alsace 17% 327903,13 €
———————————–
Coût total de l’opération : 1 928 841,93 €
soit 160 736K€/logement
Contact presse :
Laure Sanfilippo, responsable communication
Tél. : 06 70 96 81 74
Télécharger le dossier de presse
