Disponible de suite
Magnifique logement de 50.61 m², au 1er étage sans ascenseur, dans une résidence calme.
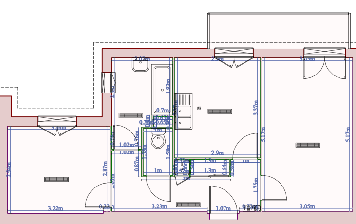
Ce logement comprend un salon lumineux, une cuisine, une chambre confortable, une salle de bain avec baignoire, des toilettes séparées, ainsi que d’un balcon. Des places de parking sont disponibles autour de la résidence.
Profitez d’un contrat d’entretien de votre logement SERENIS « tout compris »,
d’un loyer inférieur au marché privé, de 0€ de frais d’agence, et d’une permanence téléphonique pour les urgences 24h/24 et 7j/7.
État des risques : les informations sur les risques auxquels ce bien est exposé sont disponibles sur le site Géorisques : www.georisques.gouv.fr
Pièces principales
Cuisine (9.77m²), Séjour (15.77m²), Chambre 1 (10.1m²), Placard 1 (0.7m²)
Autres pièces
Salle de bain (5.32m²), W.C. 1 (1.58m²), Entrée (7.38m²), Balcon 1 (5.76m²), Cave métrée (6.54m²), Placard technique 1 (0.29m²)
APL / AL

Accueil physique
Du lundi au vendredi de 08h30 à 12h00 ou sur rendez-vous en dehors de ces horaires.
Accueil téléphonique
Du lundi au vendredi de 08h30 à 12h00 et de 14h00 à 17h00 (sauf les vendredis à 16h30).
Disponible de suite
Disponible de suite
Disponible de suite
Disponible de suite
Disponible de suite